Обяви За нас Контакти
Продава 2-СТАЕН
град София, Горубляне
ул. Стадион
144 500 €
282 617.44 лв.

(1 505 €, 2 943.52 лв./m2)
Не се начислява ДДС
Публикувана в 11:01 на 3 януари, 2026 год.
Обявата е посетена 148 пъти.
Площ:
96 m2
Етаж:
1-ви от 5
Газ:
НЕ
ТEЦ:
Лок.отопл.
Строителство:
Тухла, Ще бъде въведен в експлоатация 2026 г.

Описание на имота:


ДНЕВНА НАД 30 КВ.М! СПАЛНЯ НАД 20 КВ.М. ГЛЕДКА САМО ЗЕЛЕНИНА!

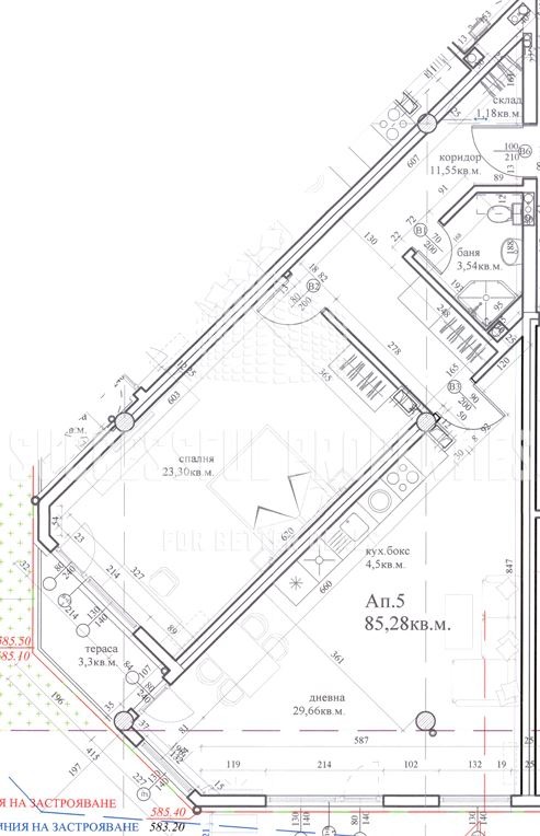
SUCCESSFUL PROPERTIES представя двустаен апартамент за продажба в ж.к Горубляне, в новострояща се сграда, с вдигнат груб строеж, направена зидария и започната фасада. Имотът ще бъде въведен в експлоатация през 2026г, като строителството върви без забавяне. Имотът гледа на югоизток, като пред него е само зеленина, помещенията са просторни и светли. Към апартамента се продава и подземно паркомясто . Обща площ на апартамента: 96. 20 кв.м, застроена площ: 85. 28 кв.м.

Разположен на първи висок етаж, състоящ се от две голяма дневна, голяма спалня, коридор с място за гардероб и склад, баня с тоалетна и тераса с гледка.

Намира се до блок 42 в ж.к Горубляне, на 3-4 мин от спирка на автобус 4, на около 5-6 мин пеша от Кауфланд Горубляне, с бърз достъп до ул. ''Самоковско шосе'' и бул. ''Цариградско шосе''

Продажна цена апартамент 144 500 евро; работим с колеги всикчи оферти!

Съдействие при покупка с кредит! За огледи и допълнителни въпроси Христо Иванов на телефон: 0879890105 или имейл:successfulpropertiesltd@gmail.com
Особености
Тухла
Асансьор
С гараж
С паркинг
Видео наблюдение
Контрол на достъпа
Саниран
За контакт:
0879890105
Агенция:
СЪКСЕСФУЛ ПРОПЪРТИС
0879890105
СЪКСЕСФУЛ ПРОПЪРТИС logo
В imot.bg от 2023 г.
successful2024.imot.bg
Адрес:
област София, гр. София, ул. Проф. Стефан Димитров 2
ИЗПРАТИ ЗАПИТВАНЕ
ИЗПРАТИ ЗАПИТВАНЕТО

Продава 2-СТАЕН
град София, Горубляне
ул. Стадион
Обява: 1b176743088933135

144 500 €
282 617.44 лв.
(1 505 €, 2 943.52 лв./m2)

Не се начислява ДДС
ЗАПАЗИ ОБЯВАТА

Местоположение: град София, Горубляне, ул. Стадион

Допълнителни данни за имотите в района и сравнение с други райони

Покажи

Период

* Средните цени са определени чрез медианна стойност